Rénovation complète d’un appartement de 52m² dans le 18e arrondissement de Paris.
« Partir de zéro pour tout recommencer » c’est la devise de ce projet.
C’est à l’occasion d’un premier achat immobilier qu’un jeune couple a pris la décision d’acquérir cet appartement construit dans les années 1990, encore dans son jus et donc nécessitant des travaux.
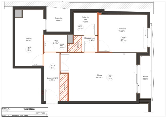
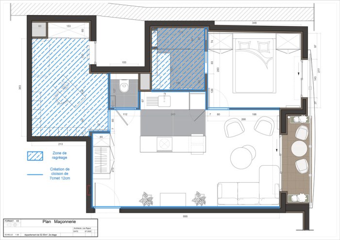
Initialement l’appartement comptait 2 pièces, l’objectif a été d’optimiser pour le transformer en 3 pièces, une réel plus value pour l’appartement.
Le projet : tournée la cuisine sur le séjour tout en conservant une pièce de vie confortable et dégagée.
Visualisation du projet en réalité virtuelle avec lunette adaptée sur rendez-vous et fichier vidéo mis à disposition du client sur Youtube grâce à un lien privé.
Quelques plans techniques destinés aux entreprises pour définir un devis détaillé et complet.










